深圳论坛

标题: 深圳海上世界双玺软装设计方案分享 [打印本页]

作者: 德派装饰    时间: 2020-6-28 14:43
标题: 深圳海上世界双玺软装设计方案分享
风格:现代轻奢风格
地址:深圳海上世界双玺
设计公司:深圳德派装饰•君尚软装艺术


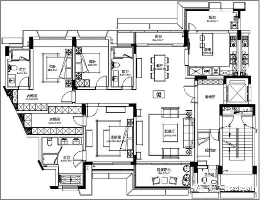
原始平面图


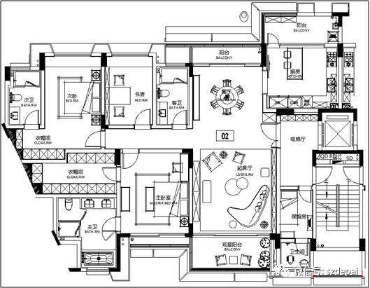
修改后平面图


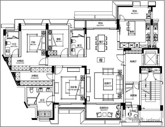
原始平面图


客厅局部调整


原始平面图


书房调整图


入户玄关现场照片


玄关平面设计图

玄关柜


客厅现场照片


客厅软装方案


多人沙发款式


客厅单椅及茶几


客厅两边书柜

餐厅现场照片
餐厅


餐厅设计方案


吧台软装设计


主卧现场照片


软装调整后


主卧局布调整方案


背景墙款式


电视背景墙

次卧实拍照


次卧方案


次卧方案


书房现场照


书房设计


厨房生活阳台现场照


观景阳台设计


生活阳台的收纳功能很重要


保姆房






欢迎光临 深圳论坛 (https://szbbsapp.sznews.com/) Powered by Discuz! X3.3