深圳论坛

标题: 德派设计 | 水榭山别墅作品 [打印本页]

作者: 德派装饰    时间: 2020-6-12 16:02
标题: 德派设计 | 水榭山别墅作品
本案业主旅居美国多年且在美国置有多处物业,对美式文化有着极高的认同度,故在这套别墅的装修风格也美式风格,设计师和业主充分达成共识,在主要空间选择了的自然、舒适、温馨的装饰特点,抛弃了所有造作、多余的装饰,以期能呈现出原汁原味的“美式风格”特性,且根据不同家庭成员的喜好进行了区域性的分类设计。
1负一层平面布置图
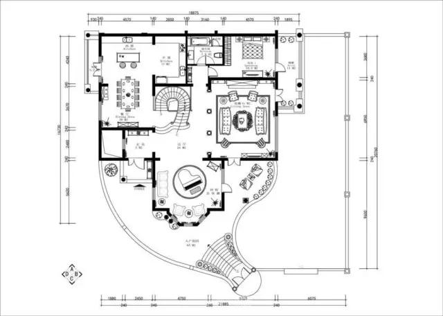
2一层平面布置图
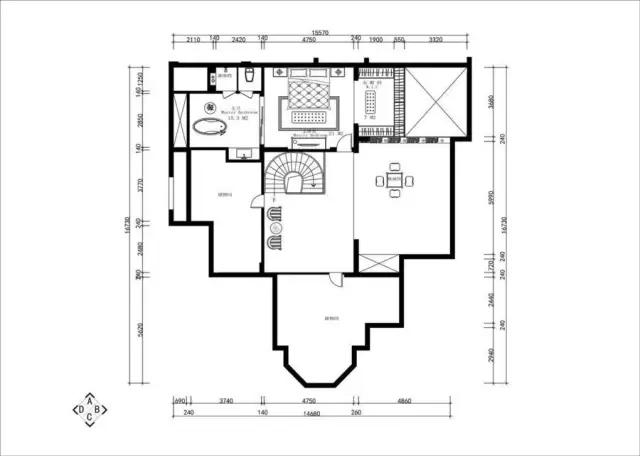
3二层平面布置图
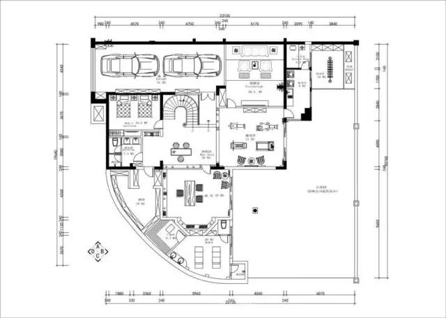
4三层平面布置图
5客厅立面图
6餐厅立面图
7客厅吊顶剖面图
8餐厅吊顶剖面图
一年一度的筑巢奖大赛,已经成为中国室内设计最具权威和影响力的顶级赛事。设计师的作品接受社会大众的检阅,全力转化设计价值,打造真正具有“普利兹克”奖品质的国际级重要奖项。
>>>>以下是该参赛作品的装修效果图
1/30
过厅效果图
2/30
客厅效果图
3/30
餐厅效果图
4/30
书房效果图
5/30
健身房效果图
6/30
豪华的别墅配上一个浪漫华丽的泳池.那样才算得上是完美。
7/30
古典美式的调调在进门的瞬息就萦绕进来,玄关独特精美的装饰品更增添了一丝复古美感。
8/30
映入眼帘沿着一个扇形楼梯拾阶而上,一种豪华尊贵的感觉就会悄然包裹我们。
9/30
沿着一个扇形楼梯拾阶而上,一种豪华尊贵的感觉就会悄然包裹我们。
10/30
三扇拱形门将客厅与过厅相连通,也使空间更加透亮。从客厅远观,通透之余更显活泼。
11/30
装饰墙的镂空装饰柜配合木梁吊顶尽显复古美感。
12/30
装饰墙的镂空装饰柜配合木梁吊顶尽显复古美感。
13/30
三扇拱形门将客厅与过厅相连通,也使空间更加透亮。从客厅远观,通透之余更显活泼。
14/30
包容与沉淀、端庄与力量、恬静与安全。
15/30
包容与沉淀、端庄与力量、恬静与安全。
16/30
餐厅同样使用木梁吊顶,西厨区增设的中岛,让视觉更简洁干净。
17/30
装饰墙的镂空装饰柜配合木梁吊顶与客厅形成呼应尽显复古美。
18/30
复古摆件
19/30
西厨区增设的中岛,让视觉更简洁干净。
20/30
画室
21/30
酒吧区简单大方,拱形门将酒吧与过厅相连通,也使空间更加透亮。
22/30
酒吧区简单大方,拱形门将酒吧与过厅相连通,也使空间更加透亮。
23/30
以浅色为主的酒窖,地下室湿度、温度各方面都非常符合酒窖的要求,私人酒窖是一种品质生活的象征,也是一种尊贵身份的体现。
24/30
选择代表着海洋的宁静蓝色作为主色调,能和其形成呼应,虽然在色彩的运用和设计手法上和主要空间有着极大的反差但因为彼此相对独立,故不会有不协调。
25/30


室内安装落地窗,保证空气自然充足流通,这样还可以保证健身房光源的充足。
26/30
定做书柜、复古造型灯,组成了一个原汁原味的敞开式书房。在美丽的冬日,手捧一杯热咖啡,读一下午的冒险小说,在古典浪漫里。
27/30
主卧室整套房子中最私人也是最体现出温馨休闲感的空间,在设计时保留原始顶面配合木梁要体现出静谧舒适的感觉。
28/30
整套房子中最私人也是最体现出温馨休闲感的空间,在设计时要体现出静谧舒适的感觉,并且与其他空间明显的区别。
29/30
卫生间也是室内设计中的一个重要部分。这套室内设计中的卫生间设计趋向的原则干净、简洁。
30/30
卫生间也是室内设计中的一个重要部分。这套室内设计中的卫生间设计趋向的原则干净、简洁。


作者: atang001    时间: 2020-8-14 10:21
富丽堂皇,还真不错的




欢迎光临 深圳论坛 (https://szbbsapp.sznews.com/) Powered by Discuz! X3.3